МИР НЕДВИЖИМОСТИ ПРО
МИРНЕДВИЖИМОСТИ

Продажа эксклюзивного участка земли 0.23 га - 3.3 га в д.Верковляны

Верковляны, Центральная ул.
Подробное описание:

 Эксклюзивное место для вашей тихой и размеренной жизни!!!

 Участок размером 0.23 га в окружении леса с электричеством и колодцем. Возле участка есть родник, с чистейшей водой, из которого течет ручей в свою сажалку, где можно ловить рыбу. Дом стоит обособленно от деревни на расстоянии более 300м, есть собственная дорога через перелесок к своему участку. Вокруг богатые охотничьи угодья. Есть возможность и разрешение на получение земли в 3.3 га в аренду под ведение крестьянско-фермерского хозяйства. Не далеко располагаются несколько магазинов и медицинский пункт.

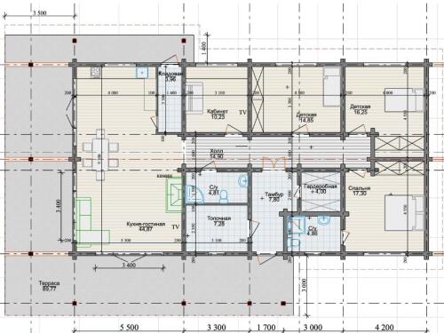
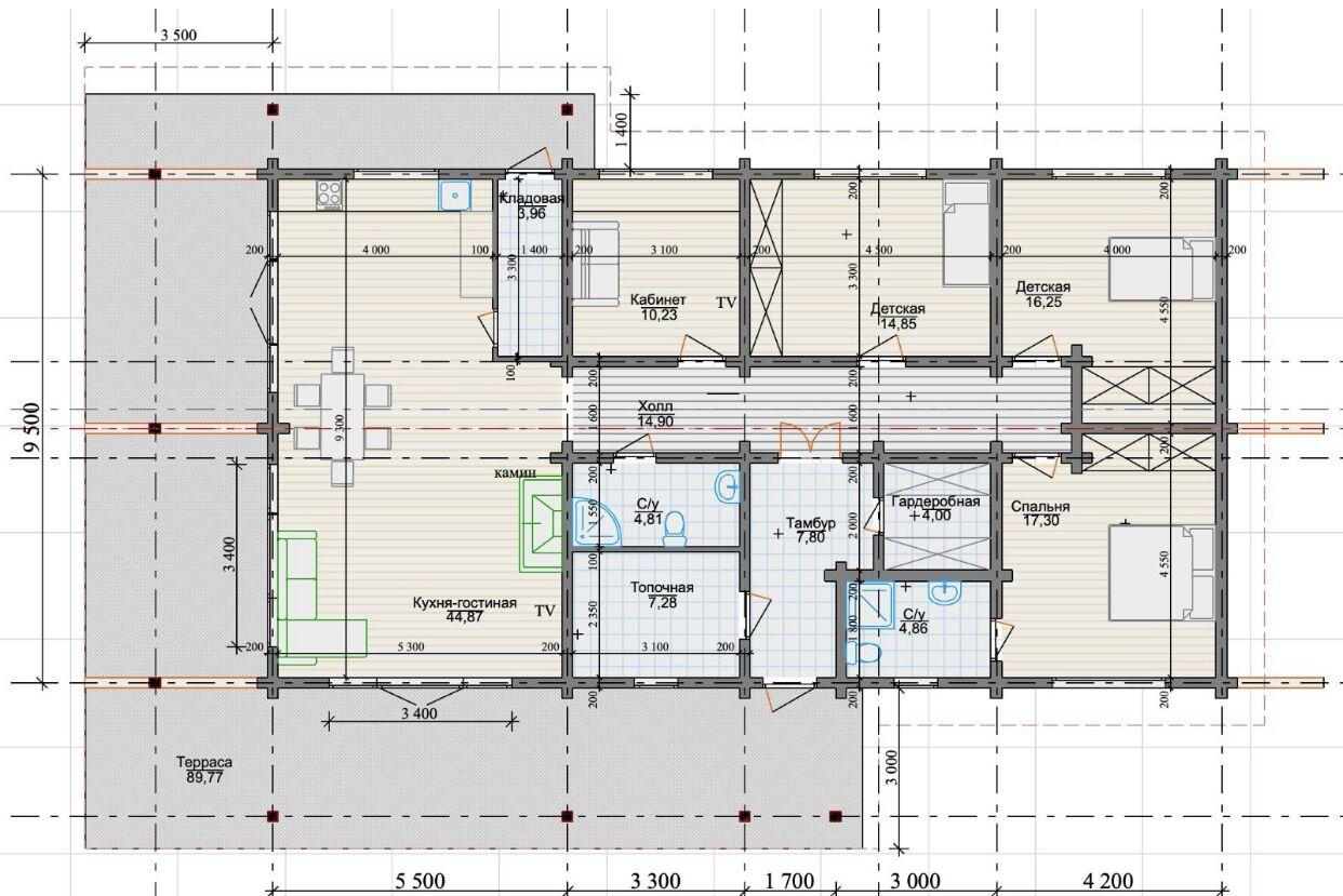
Изготовлен и согласован проект для строительства жилого дома в 280 м2, баней в 60 м2, гаражём в 135 м2. Участок готов к проведению строительных работ.

Дом одноуровневый 41.6 м2, жилая 20.8 м2 и кухней 7 м2 , с двумя комнатами, посредине добротная печь, крыша шифер, поставлены новые электрические столбы и счётчики,  есть два колодца с чистой водой

Удобные и асфальтированные подъездные пути.  Регулярное транспортное сообщение (автобусы и маршрутные такси).

Параметры
Вид объекта: участок
Материал крыши: шифер
Электричество: есть
Канализация: с/у на улице
Площадь участка: 23 соток
Условия сделки: чистая продажа
42512BYN
Обновлено: 2026-03-17
Код: 4065186
Номер договора: 47/1(2026)
от 2026-03-17
+375 29 659-62-76
+375 29 350-42-42
Оставить заявку
Расположение на карте