МИР НЕДВИЖИМОСТИ ПРО
МИРНЕДВИЖИМОСТИ

Квартира с дизайнерским ремонтом в ЖК «Левада», ул.Нововиленская, д.39

Минск, Нововиленская ул., 39
Подробное описание:

Продается квартира с дизайнерским ремонтом в ЖК «Левада» с продуманной эргономикой и качественной отделкой.

Ул.Нововиленская, д.39

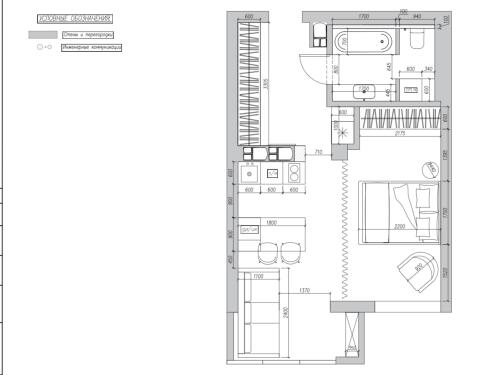
Общая площадь СНБ 41.0 м2, жилая 31.0 м2.

7/9 этажного каркасно-блочного дома 2022 года постройки.

Сочетание функциональности и красоты. Пространство квартиры использовано максимально эргономично и состоит из кухни-гостиной и выделенной спальни. Совмещенный санузел с ванной. Много мест хранения.

Полностью укомплектована всей необходимой мебелью и техникой.

В ремонте использовались только высококачественные материалы.

Премиальный паркет французкая елка, теневые плинтуса. В санузле широкоформатный итальянский керамогранит, итальянская сантехника, ванна Villeroy & Boch, немецкая бытовая техника, холодильник liebherr, итальянские отделочные материалы, мебель, текстиль, свет Vibia. Квартира полностью укомплектована для жизни.

 По периметру ведется видеонаблюдение. Хорошо развита инфраструктура. В шаговой доступности находятся: продуктовые магазины, кафе, рестораны, салоны красоты, зеленая зона и река Свислочь, в ближайшие два года будут построены школа и детский садик.

Квартира продается вместе с кладовой (5,2 м2), находящейся на -1 этаже.

Параметры
Тип дома: каркасно-блочный
Высота потолков: 2.7
Этаж / этажность: 7 / 9
Площадь: 41 / 29.2 / - кв.м.
Год постройки: 2022
Ремонт: хороший ремонт
Балкон: нет
Сан/узел: совмещенный
Условия сделки: чистая продажа
495968BYN
Обновлено: 2026-03-27
Код: 4076837
Номер договора: 52/1(2026)
от 2026-03-26
Ольга Голочевская
+375 29 650-72-95
+375 29 350-42-42
Оставить заявку
Расположение на карте